€ 200.000
LOCALE COMMERCIALE CON CAPANNONE

Rif: GA499
  • 13 Foto
  • 1 Planimetrie
  • Mappa

Descrizione

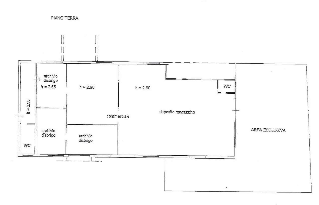
Rif: GA499 - VERONA-Loc. Bassona-In zona strategica e logisticamente comoda ad Ovest di Verona, al confine con il Comune di Bussolengo, proponiamo in vendita capannone commerciale di mq 335 c.a. L'immobile si sviluppa al piano terra ed è composto da una parte a destinazione magazzino/deposito ed una parte utilizzata per attività amministrativa e commerciale con un servizio wc ed un'area esterna di proprietà. L'unità in oggetto dispone inoltre di un'altra vasta area cortilizia comune che consente ampia possibilità di parcheggio sia di auto che di automezzi. Attualmente l'immobile è locato ad attività commerciale ben avviata e consolidata con una rendita pari al 7,80% annua.

Richiedi maggiori informazioni

Autorizzazione al trattamento dei dati personali+
Dichiaro di aver letto l'informativa sulla privacy ed accetto le condizioni d'utilizzo del servizio.
Riempi il campo con il codice riportato nell'immagine*
Codice Captcha

Dettaglio immobile

Contratto Vendita
Rif GA499
Prezzo € 200.000
Provincia Verona
Comune Verona
Zona Bassone
Indirizzo Via Bassone 27
Superficie 335 mq
Vani 4
Classe energetica Non soggetto
Riscaldamento inesistente
Condizioni abitabile
Ascensore no

Consistenze

Descrizione Superficie Sup. comm.
Principali
Magazzino - piano terra 335 Mq 335 Mqc
Totale 335 Mqc

Contattaci

Autorizzazione al trattamento dei dati personali+
Dichiaro di aver letto l'informativa sulla privacy ed accetto le condizioni d'utilizzo del servizio.
Riempi il campo con il codice riportato nell'immagine*
Codice Captcha

Immobiliare Armani Giorgia

Via Farinati degli Uberti, 14/D
37126 VERONA (VR)
C.F.: RMNGRG86A60L781Z
P.IVA: 04247360235
+390452586623
Condividi Linkedin Whatsapp Stampa
Stampa